Quadrilocale in vendita

Palermo, Via del Parlamento - Centro Storico
€ 266.000
Prezzo aggiornato
4 locali 4 locali
119 Mq 119 Mq
2 bagni 2 bagni

Quadrilocale in vendita

Palermo, Via del Parlamento - Centro Storico

Descrizione annuncio

Nel cuore del centro storico di Palermo, in Via del Parlamento a 350 da Piazza Marina,

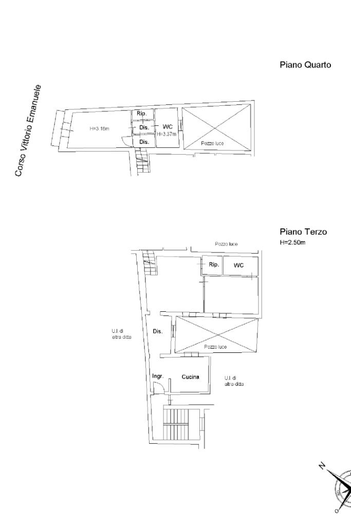
Proponiamo in vendita un elegante e silenzioso appartamento di 120 mq su due livelli, situato al terzo senza ascensore.

La proprietà gode di un affaccio diretto su Corso Vittorio Emanuele, la via più antica e suggestiva della città.

Completamente ristrutturato con finiture moderne e di qualità, l’immobile si compone

- al primo livello di cucina abitabile con penisola e balcone a petto, ampio e luminoso soggiorno con camerino, camera matrimoniale con bagno in camera.

Una scala interna conduce al piano superiore, concepito come una vera suite:

spaziosa camera da letto con balcone su Corso Vittorio Emanuele, cabina armadio e grande bagno finestrato.

Climatizzato, arredato e pronto da abitare. Rappresenta una soluzione chiavi in mano ideale sia come residenza nel cuore della città sia come investimento.

Attualmente è adibito a casa vacanze con attività già avviata, recensioni sopra la media e reddito documentabile.

Visionabile tutti i giorni previo avviso telefonico al 0916162125 o invia un messaggio WhatsApp al 3714745629.

Mostra tutto

Nelle vicinanze

Trasporto pubblico Trasporto pubblico
Palermo Centrale
Palermo Centrale
890 m
Palazzo Reale - Orleans
Palazzo Reale - Orleans
1,4 Km
Stazione Centrale
Stazione Centrale
800 m
Ingrassia
Ingrassia
980 m
Vittorio Emanuele Fontana di Garaffo
Vittorio Emanuele Fontana di Garaffo
130 m
Ricariche auto elettriche Ricariche auto elettriche
IONITY Basile Palermo
2,6 Km
EnelX EVA+ Negozio Enel di Palermo
2,9 Km
Scuole Scuole
Rettorato Università degli studi di Palermo
350 m
Istituto Tecnico Nautico "Gioeni-Trabia"
460 m
Facoltà di Giurisprudenza
500 m
Scuole
540 m
Istituto Comprensivo Statale "Rita Atria"
560 m
Farmacia Farmacia
Farmacia Naro
230 m
Farmacia
250 m
Farmacia delle Poste
490 m
Roma
690 m
Antica Farmacia Cavour
780 m
Ospedali Ospedali
Ospedale dei bambini "Giovanni Di Cristina"
1,3 Km
Azienda Ospedaliera Universitaria Policlinico "Paolo Giaccone"
1,5 Km
Ospedale Civico e Benefratelli "G. Di Cristina" e "M. Ascoli"
1,7 Km
Policlinico (Nuove aule)
1,7 Km
Ospedale Buccheri La Ferla Fatebenefratelli
2,1 Km
Supermercati Supermercati
Carrefour
190 m
Supermercato 3C
390 m
Mini Market
420 m
Lidl
460 m
Aviko surgelati
730 m
Negozi Negozi
Negozi
50 m
Panificio Carella
190 m
Cinti
230 m
Cliché
240 m
Luisa Spagnoli
240 m
Bar Bar
Colletti
60 m
Bodega Colletti
60 m
La Loggia
100 m
Raval
110 m
Al Covo
110 m
Ristoranti Ristoranti
Cagliostro
20 m
Buatta Cucina Popolana
70 m
Casa del brodo
80 m
Voglia di Pizza
90 m
Aibottai
90 m
Mostra tutto

Caratteristiche

Rif.:
61180322
Piano:
3 di 5 (Piano su più livelli)
Balconi:
1
Camere da letto:
2
Arredamento:
Completo
Condizionamento:
Autonomo
Mostra tutto
Prezzo Prezzo
€ 266.000
Rata mutuo Rata mutuo
€ 1.254 / mese
Proponi il tuo prezzoProponi il tuo prezzo

Classe Energetica

Questo immobile è esente da classe energetica
Anno di costruzione:
1900
Riscaldamento:
Assente

Prezzo ridotto di €1 (5%%)

Ti interessa visionare l'immobile?

Fissa un appuntamento  Fissa un appuntamento

Richiedi informazioni

Clicca su Leggi per aprire l'informativa
* Questi campi sono obbligatori

Calcola il tuo mutuo

Semplice e senza impegno
Anticipo

( % )
Mutuo

( % )

pochi semplici passi

inserisci i tuoi dati
Questionario completato
Grazie per aver richiesto un appuntamento senza impegno con un nostro Consulente del Credito e Assicurativo.

Hai inserito correttamente tutti i dati necessari e a breve riceverai una e-mail con un link da convalidare per inviare i tuoi dati.
Affiliato
Studio Centro Storico Sas
Via Maqueda, 161 90133 Palermo (PA)

Il nostro staff


  • Maurizio Trentacoste
    Affiliato

  • Miriam Diletta Cucchiara
    Collaboratrice
Via Maqueda, 161 90133 Palermo (PA)
Zona: Centro Storico-Piazza Marina- Palazzo Reale- Magione
Mostra su mappa
Orari: dal lunedì al venerdì dalle 9:00 alle 13:00 e dalle 15:30 alle 19.30; il sabato dalle 9:00 alle 13:00
Affiliato
Studio Centro Storico Sas
Via Maqueda, 161 90133 Palermo (PA)

2026 Tecnocasa Franchising S.p.A. - P. IVA 08365160152 - Via Monte Bianco 60/A 20089 Rozzano (MI). Ogni agenzia ha un proprio titolare ed è autonoma. Privacy policy | Policy utilizzo | Cookie policy